Appartement 3 chambres à vendre à Quinta do Cedro, Oeiras, Portugal • ARE36130
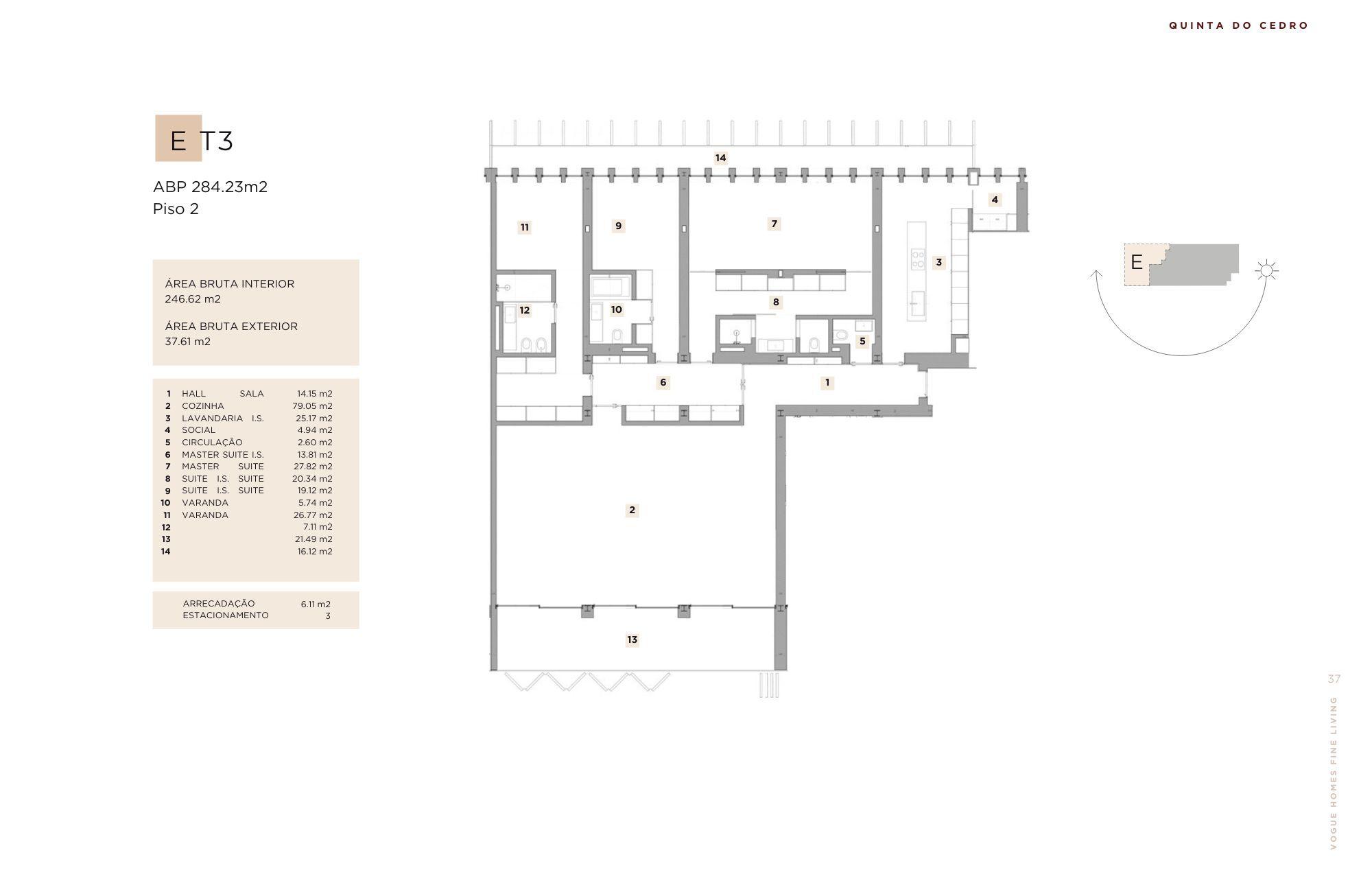
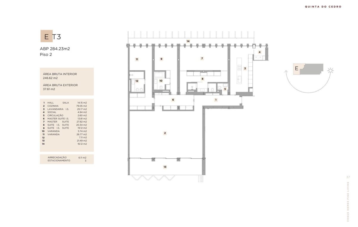
Appartement à vendre à Oeiras, Grand Lisbonne, Portugal, avec 3 chambres et vue jardin. Immeuble résidentiel Premium. Cet appartement de plain-pied est situé au deuxième étage et offre une surface intérieure de 246,62 m². Construit en 2025, il est orienté sud, ce qui permet une excellente luminosité naturelle.
L’appartement comprend des balcons, un jardin et une piscine, offrant de nombreux espaces extérieurs pour se détendre. Il dispose également de 3 salles de bains, assurant confort et commodité. Le garage peut accueillir jusqu’à 3 voitures, et un espace de rangement supplémentaire est disponible.
Les équipements modernes incluent un système d’alarme pour la sécurité et des panneaux solaires pour le chauffage de l’eau, ce qui contribue à une bonne efficacité énergétique. Situé dans le développement Quinta do Cedro, cet appartement est en pleine propriété. Le prix demandé pour cet appartement est € 2 350 000.
Détails de la Propriété
| Référence de la propriété | ARE-36130 |
| Type de propriété | appartement |
| Disponibilité de la propriété | à vendre |
| Vue de la Propriété | vue jardin |
| Pays | Portugal |
| District | Grand Lisbonne |
| Ville | Oeiras |
| Sélection résidentielle | Maisons Premium |
| Appartient au programme | Quinta do Cedro |
| Nombre de chambres | 3 |
| Nombre de salles de bain | 3 |
| Étages de l'appartement | appartement de plain-pied |
| Quel étage | deuxième étage |
| Surface intérieure | 246.62 m² |
| Année de construction | 2025 |
| Orientation de la propriété | sud |
| Avec piscine | Oui |
| Avec jardin | Oui |
| Avec balcons/terrasses | balcons |
| Avec garage privé | Non |
| Avec garage | Oui |
| Places de garage | 3 |
| Avec débarras | Oui |
| Espaces de stockage | 1 |
| Sécurité | système d'alarme |
| Panneaux solaires | pour le chauffage de l'eau |
| Type de propriété | pleine propriété |
|
Portugal Continental - Calculateur de Taxes 2026
|
|
| Loading... | |
| Prix Demandé | 2 350 000 € |
Contactez-nous pour Appartement ARE-36130
Maisons similaires
Appartement 2 chambres à vendre à Vista Mirear, Miraflores, Oeiras, Grand Lisbonne • ARE39922
- Prix demandé
- 715 000 €
- Référence de la propriété
- ARE-39922
- Nombre de chambres
- 2
- Surface intérieure
- 88.0 m2
Appartement 3 chambres à vendre à Vista Mirear, Miraflores, Oeiras, Portugal • ARE39702
- Prix demandé
- 795 000 €
- Référence de la propriété
- ARE-39702
- Nombre de chambres
- 3
- Surface intérieure
- 114.0 m2
- Certification énergétique
- A
Appartement 4 chambres à vendre à Vista Mirear, Miraflores, Oeiras, Portugal • ARE39701
- Prix demandé
- 1 150 000 €
- Référence de la propriété
- ARE-39701
- Nombre de chambres
- 4
- Surface intérieure
- 177.0 m2
- Certification énergétique
- A
























