Apartamento 1 habitación en venta en DISTRIKT, Parque das Nações, Lisboa • ARE39886
Apartamento en venta en Parque das Nações, Lisboa, Greater Lisbon, Portugal, con 1 dormitorio y vista ciudad. Imóvel residencial Premium.
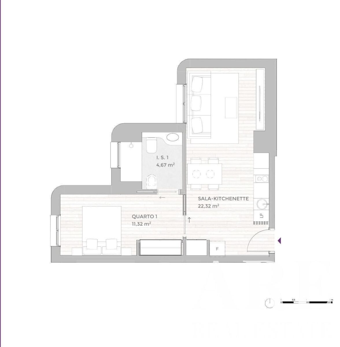
Este apartamento de una planta se encuentra en la cuarta planta y ofrece un área interior de 48.9 metros cuadrados. Construido en 2025, el inmueble cuenta con una orientación noroeste, lo que proporciona una buena iluminación natural. La propiedad incluye una piscina exterior y un jardín, ideales para disfrutar del aire libre. Además, dispone de un gimnasio equipado con máquinas de fitness, lo que añade un valor significativo para aquellos que buscan mantener un estilo de vida activo.
El apartamento está equipado con un equipo de seguridad y cuenta con paneles solares para el calentamiento de agua, lo que contribuye a una mayor eficiencia energética. La calificación energética es A, indicando una excelente eficiencia. También incluye un espacio de garaje y un espacio de almacenamiento, lo que proporciona comodidad adicional para los residentes. La propiedad es de propiedad completa, asegurando tranquilidad y privacidad.
El precio pedido por este apartamento es € 560 000.
Detalles del Inmueble
| Referencia de la propiedad | ARE-39886 |
| Tipo | apartamento |
| Disponibilidad | en venta |
| Vista de la Propiedad | vista ciudad |
| País | Portugal |
| Distrito | Gran Lisboa |
| Localidad | Lisboa |
| Barrio | Parque das Nações |
| Selección residencial | Casas Premium |
| Pertenece al desarrollo | DISTRIKT |
| Número de dormitorios | 1 |
| Número de baños | 1 |
| Plantas del apartamento | apartamento de una planta |
| Qué planta | cuarta planta |
| Área interior | 48.9 m² |
| Año de construcción | 2025 |
| Certificación energética | A |
| Orientación de la propiedad | noroeste |
| Tiene piscina | Yes |
| Tipo de piscina | piscina exterior |
| Tiene jardín | Yes |
| Tiene garaje | Yes |
| Plazas de garaje | 1 |
| Tiene trastero | Yes |
| Plazas de trastero | 1 |
| Calefacción y refrigeración | aire acondicionado |
| Seguridad | equipo de seguridad |
| Paneles solares | para calentamiento de agua |
| Acceso entre plantas | Ascensor |
| Gimnasio | equipado con máquinas de fitness |
| Régimen de propiedad | propiedad completa |
Portugal Continental - Calculadora de Impuestos 2026 | |
| Loading... | |
| Precio Solicitado | 560 000 € |
Contáctenos por Apartamento ARE-39886
Casas similares
Apartamento 1 habitación en venta en DISTRIKT, Parque das Nações, Lisboa • ARE39895
- Precio solicitado
- 565 000 €
- Referencia de la propiedad
- ARE-39895
- Número de dormitorios
- 1
- Área interior
- 48.9 m2
- Certificación energética
- A
Apartamento 1 habitación en venta en Parque das Nações, Lisboa • ARE38388
- Precio solicitado
- 555 000 €
- Referencia de la propiedad
- ARE-38388
- Número de dormitorios
- 1
- Área interior
- 57.0 m2
- Certificación energética
- B
Apartamento 1 habitación en venta en Distrikt, Parque das Nações, Lisboa • ARE38321
- Precio solicitado
- 590 000 €
- Referencia de la propiedad
- ARE-38321
- Número de dormitorios
- 1
- Área interior
- 51.2 m2
- Certificación energética
- A























