Apartamento 3 habitaciones en venta en Cais do Sodré, Lisboa • ARE35849
Apartamento en venta en Cais do Sodré, Lisboa, Gran Lisboa, Portugal, con 3 dormitorios y vista ciudad. Imóvel residencial Premium.
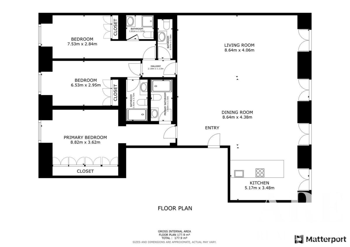
Este apartamento de una planta se encuentra en la primera planta y cuenta con 206 metros cuadrados de área interior. La propiedad comprende 3 dormitorios y 4 baños, con orientación este que proporciona luz natural durante las mañanas. El apartamento incluye sistema de seguridad CCTV con circuito cerrado de televisión para videovigilancia.
La calificación energética B- indica buena eficiencia energética, que a menudo puede mejorarse con pequeñas actualizaciones. La distribución en una sola planta facilita la circulación interior y aprovecha el espacio disponible. La ubicación en Cais do Sodré ofrece acceso directo a transporte público, restaurantes y servicios del centro de Lisboa. Se trata de una propiedad completa, lo que significa que el comprador adquiere la totalidad del inmueble. El precio pedido por este apartamento es € 1 490 000.
Detalles del Inmueble
| Referencia de la propiedad | ARE-35849 |
| Tipo | apartamento |
| Disponibilidad | en venta |
| Vista de la Propiedad | vista ciudad |
| País | Portugal |
| Distrito | Gran Lisboa |
| Localidad | Lisbon |
| Barrio | Cais do Sodré |
| Selección residencial | Casas Premium |
| Número de dormitorios | 3 |
| Número de baños | 4 |
| Plantas del apartamento | apartamento de una planta |
| Qué planta | primera planta |
| Área interior | 206.0 m² |
| Certificación energética | B- |
| Orientación de la propiedad | este |
| Seguridad | CCTV - circuito cerrado de televisión (videovigilancia) |
| Acceso entre plantas | Ascensor |
| Régimen de propiedad | propiedad completa |
|
Portugal Continental - Calculadora de Impuestos 2026
|
|
| Loading... | |
| Precio Solicitado | 1 490 000 € |
Contáctenos por Apartamento ARE-35849
Casas similares
Apartamento 4 habitaciones en venta en Baixa, Lisboa, Greater Lisbon • ARE23952
- Precio solicitado
- 1 050 000 €
- Referencia de la propiedad
- ARE-23952
- Número de dormitorios
- 4
- Área interior
- 136.15 m2
- Certificación energética
- C
Apartamento 3 habitaciones en venta en Saldanha, Lisboa, Greater Lisbon • ARE39071
- Precio solicitado
- 1 700 000 €
- Referencia de la propiedad
- ARE-39071
- Número de dormitorios
- 3
- Área interior
- 155.0 m2
- Certificación energética
- B
Apartamento 3 habitaciones en venta en Alegria 25, Praça da Alegria, Lisboa, Greater Lisbon • ARE20356
- Precio solicitado
- 1 400 000 €
- Referencia de la propiedad
- ARE-20356
- Número de dormitorios
- 3
- Área interior
- 204.0 m2

















































