Villa 7 habitaciones en venta en Santo Amaro de Oeiras, Oeiras, Portugal • ARE34906
Villa de 7+1 habitaciones, completamente renovada, en Santo Amaro de Oeiras
Una villa de siete habitaciones más una en Santo Amaro de Oeiras fue completamente renovada en 2020 bajo un proyecto de Bernardes Arquitetura.
Distribución
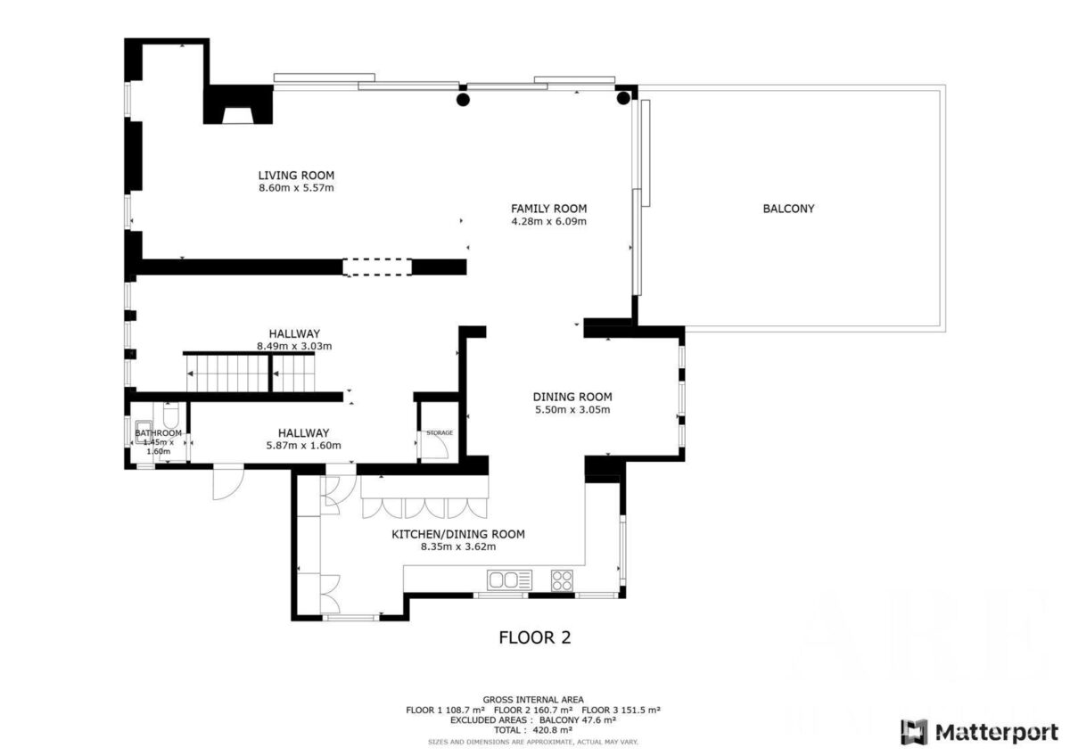
La propiedad se distribuye en tres niveles:
- Planta baja:
- Hall de entrada
- Baño de invitados
- Cocina totalmente equipada con refrigerador tipo americano y área de comedor (20 m²), accesible tanto desde el recibidor como desde el comedor / sala de estar
- El comedor (20 m²) se conecta directamente con la cocina y la sala de estar, mientras que la sala de estar cuenta con una chimenea y tres zonas diferenciadas: lectura, socialización y descanso, todas con acceso a una terraza cubierta de 65 m².
- Terraza con barbacoa, área de fregadero y lavavajillas
- Planta superior:
- Cuatro dormitorios en suite. La suite principal incluye un vestidor y una habitación adicional se puede utilizar como sala de juegos, sala de TV u oficina.
- Nivel inferior
- Este nivel también puede funcionar como una unidad completamente independiente. Incluye un área técnica con una suite de servicio con ventanas y un lavadero, junto a un apartamento independiente de dos habitaciones. El apartamento cuenta con una sala de estar de planta abierta y una cocina totalmente equipada con acceso al jardín, un pasillo con armarios empotrados, una suite y otra suite con vestidor y un baño completo.
El exterior cuenta con un jardín paisajístico, césped, piscina y sauna, con la opción de estacionamiento en el lugar.
Características
- Sistema de domótica
- Aire acondicionado
- Calefacción central
- Electrodomésticos Gaggenau
- Sistema de alarma
- Persianas eléctricas
- Chimenea
- Ventanas de doble acristalamiento
- Puertas de alta seguridad
- Piscina privada
- Sauna
- Zona de barbacoa
Detalles del Inmueble
| Referencia de la propiedad | ARE-34906 |
| Tipo | villa |
| Disponibilidad | en venta |
| País | Portugal |
| Distrito | Gran Lisboa |
| Localidad | Oeiras |
| Barrio | Santo Amaro de Oeiras |
| Número de dormitorios | 7 |
| Número de baños | 5 |
| Número de plantas | sótano, planta baja y primera planta |
| Área interior | 400.0 m² |
| Año de construcción | 1941 |
| Tiene piscina | Yes |
| Tipo de piscina | piscina exterior |
| Tiene jardín | Yes |
| Tiene balcones/terrazas | balcones y terrazas |
| Tiene aparcamiento exterior | Yes |
| Seguridad | sistema de alarma |
| Paneles solares | para calentamiento de agua |
| Persianas eléctricas | en todas las habitaciones |
| SPA | sauna |
| Régimen de propiedad | propiedad completa |
|
Portugal Continental - Calculadora de Impuestos 2026
|
|
| Loading... | |
| Precio Solicitado | 4 500 000 € |
Contáctenos por Villa ARE-34906
Casas similares
Villa 4 habitaciones en venta en Oeiras Golf Residence, Oeiras, Portugal • ARE39430
- Precio solicitado
- 2 300 000 €
- Referencia de la propiedad
- ARE-39430
- Número de dormitorios
- 4
- Área interior
- 286.91 m2
- Certificación energética
- A+
Villa 5 habitaciones en venta en Carnaxide, Oeiras, Gran Lisboa • ARE28221
- Precio solicitado
- 2 900 000 €
- Referencia de la propiedad
- ARE-28221
- Número de dormitorios
- 5
- Área interior
- 261.0 m2
Villa Lujo 5 habitaciones en venta en Santo Amaro de Oeiras, Oeiras, Greater Lisbon • ARE38927
- Precio solicitado
- 1 750 000 €
- Referencia de la propiedad
- ARE-38927
- Número de dormitorios
- 5
- Área interior
- 245.0 m2
- Certificación energética
- A+

















































































