Apartamento 2 habitaciones en venta en Quinta do Cedro, Oeiras, Portugal • ARE36144
Apartamento en venta en Oeiras, Gran Lisboa, Portugal, con 2 dormitorios y vista jardín. Propiedad residencial Premium.
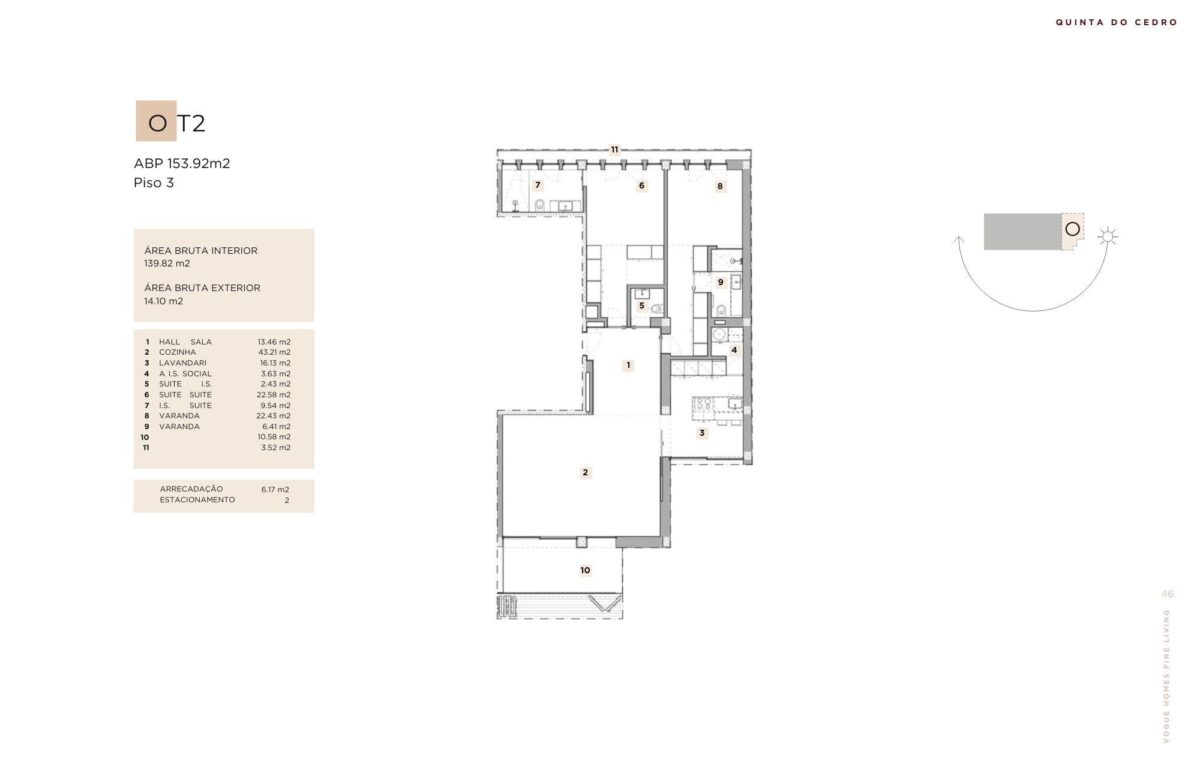
Este apartamento de una planta se encuentra en la tercera planta del desarrollo Quinta do Cedro, con una superficie interior de 139,83 metros cuadrados. La propiedad cuenta con 2 dormitorios y 3 baños, orientada hacia el sur para maximizar la luz natural durante todo el día. Los balcones ofrecen acceso directo al aire libre y permiten disfrutar de las vistas al jardín.
El inmueble incluye 3 plazas de garaje y 1 trastero, proporcionando amplio espacio de almacenamiento. Las instalaciones comunitarias comprenden piscina y jardín, mientras que la seguridad se garantiza mediante un sistema de alarma. La propiedad incorpora paneles solares para calentamiento de agua, lo que contribuye a la eficiencia energética. Con año de construcción previsto para 2025, este apartamento representa una oportunidad de adquirir una vivienda moderna con acabados contemporáneos.
El precio pedido por este apartamento es € 1 475 000.
Detalles del Inmueble
| Referencia de la propiedad | ARE-36144 |
| Tipo | apartamento |
| Disponibilidad | en venta |
| Vista de la Propiedad | vista jardín |
| País | Portugal |
| Distrito | Gran Lisboa |
| Localidad | Oeiras |
| Selección residencial | Casas Premium |
| Pertenece al desarrollo | Quinta do Cedro |
| Número de dormitorios | 2 |
| Número de baños | 3 |
| Plantas del apartamento | apartamento de una planta |
| Qué planta | tercera planta |
| Área interior | 139.83 m² |
| Año de construcción | 2025 |
| Orientación de la propiedad | sur |
| Tiene piscina | Yes |
| Tiene jardín | Yes |
| Tiene balcones/terrazas | balcones |
| Tiene garaje | Yes |
| Plazas de garaje | 3 |
| Tiene trastero | Yes |
| Plazas de trastero | 1 |
| Seguridad | sistema de alarma |
| Paneles solares | para calentamiento de agua |
| Acceso entre plantas | Ascensor |
| Régimen de propiedad | propiedad completa |
|
Portugal Continental - Calculadora de Impuestos 2026
|
|
| Loading... | |
| Precio Solicitado | 1 475 000 € |
Contáctenos por Apartamento ARE-36144
Casas similares
Apartamento 4 habitaciones en venta en Miraflores, Oeiras, Gran Lisboa • ARE40257
- Precio solicitado
- 1 250 000 €
- Referencia de la propiedad
- ARE-40257
- Número de dormitorios
- 4
- Área interior
- 181.1 m2
Apartamento 3 habitaciones en venta en Vista Mirear, Miraflores, Oeiras, Portugal • ARE39720
- Precio solicitado
- 830 000 €
- Referencia de la propiedad
- ARE-39720
- Número de dormitorios
- 3
- Área interior
- 115.7 m2
- Certificación energética
- A
Apartamento 2 habitaciones en venta en Vista Mirear, Miraflores, Oeiras, Gran Lisboa • ARE39922
- Precio solicitado
- 715 000 €
- Referencia de la propiedad
- ARE-39922
- Número de dormitorios
- 2
- Área interior
- 88.0 m2
























